- alvescoconstruction@gmail.com
- (978) 595-4949
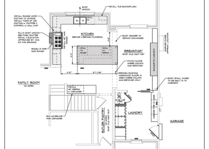
A gut renovation means taking everything down to the studs — walls, floors, ceilings, systems — and rebuilding the interior of your home from scratch. Whether you’re updating an old property or transforming a layout, Alvesco Construction handles every stage with licensed precision.
Full demolition and clean-up
Layout redesign and architectural planning
Framing, insulation, drywall
Plumbing, electrical, and HVAC replacement
Flooring, painting, trim and finish work
Kitchens and bathrooms completely redone
Permit management and inspections
Monday – Friday: 8:00 AM – 6:00 PM
Saturday: 9:00 AM – 1:00 PM
Sunday: Closed